Back to Listings
For Sale Single Family Residence

1283 106th Street, Cleveland, OH

1283 106th Street, Cleveland, OH, 44102
$750,000

Property Details

3 Bedrooms
3 Bathrooms
3,400 Sq Ft
Single Family Residence

Description

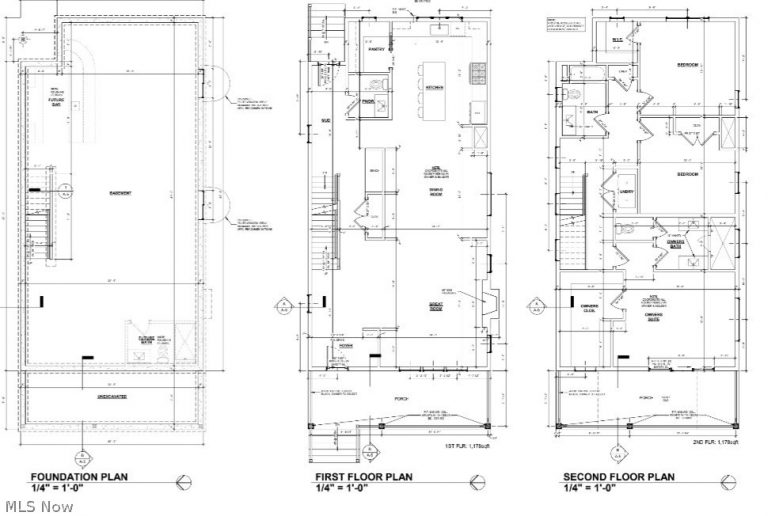
Prime Build Opportunity in Edgewater – Plans + Momentum Included Exceptional opportunity to build in one of Cleveland’s most desirable and rapidly growing neighborhoods—Edgewater. Located just minutes from Edgewater Park, Lake Erie, and the vibrant Detroit Shoreway corridor, this vacant parcel offers the ideal blend of lifestyle, location, and long-term upside. What sets this lot apart is the head start it offers. The current owner has already completed key pre-development work, including a survey, site planning, and full architectural plans for a thoughtfully designed single-family home (approx. 3 bed, 2.5 bath, ~2,400 sq ft above grade with additional basement space). Plans have been submitted to the City, allowing a future buyer to step into the process with significant time savings. Buyers have the flexibility to: Move forward with the existing plans and accelerate their build timeline Or bring their own vision and design a custom home from the ground up The lot features 40’ frontage with a layout that supports a functional footprint, detached garage, and off-street parking. Preliminary site planning has already accounted for driveway placement and overall usability. For those exploring new construction, the seller can also connect buyers with reputable local builders who are familiar with the plans and site. Whether you’re an end-user looking to build a primary residence or an investor seeking a high-demand location, this is a rare chance to secure a ready-to-go homesite in a premier west side neighborhood.Price includes lot plus estimated cost to build based on quotes from 3 different builders and may be higher/lower depending upon your own needs. Lot is being sold for $119,000 and this listing with home build is for illustrative purposes.

Property Information

Address 1283 106th Street
City Cleveland
State OH
Zip Code 44102
Price $750,000
Property Type Residential
Listing Type Single Family Residence
Bedrooms 3
Bathrooms 3
Area 3,400 Sq Ft

Location

Quick Inquiry

Fill out the form below and we'll get back to you shortly.

Property Contact

I agree to be contacted by Smartland Realty via call, email, and text for real estate services.

To opt out, you can reply 'stop' at any time or reply 'help' for assistance. You can also click the unsubscribe link in the emails. Message and data rates may apply. Message frequency may vary. Privacy Policy

Not sure what you're looking for?

Explore other listings in Cleveland or let our agents find the perfect match for you.

Browse All Listings Contact Us